星空体育- 星空体育官方网站- APP下载首页:330米地标+200米住宅!浦东金桥春宇地块项目规划设计方案最新公示→销售动态→核心配套-项目新动态-请看图文解析
2026-02-24星空体育,星空体育官方网站,星空体育APP下载/星空体育官方网站(xk-sports)亚洲卓越在线公司[永久网址:363050.com]星空体育,星空集团,星空体育官网,星空体育app,星空体育网页版,星空捕鱼,星空体育app下载,星空体育官网,星空体育下载,星空电竞,世界杯,足球,星空体育入口,星空体育网址,星空体育全站,星空体育注册网址,星空体育注册链接,星空APP下载,以安全稳定的服务和打造星空体育app而闻名海内外。春宇、美亚两个项目在一起,紧邻中环、金科路、川桥路,西侧紧邻碧云国际社区。
轨交上,靠近14号线号线台儿庄路站,商业配套以LaLaport为主,台儿庄路附近还有一些沿街商铺。
春宇地块规划有330米塔楼,未来将成为浦东第五高楼,将是金桥最高建筑高度。
330米高度比在建的张江副中心的双子塔(320米)还要高,仅低于632米的上海中心、492米的环球金融中心、468米的东方明珠和420米的金茂大厦。
美亚地块打造2栋200米高的天际住宅,建成后将成功超越191米(加了屋顶凸起和塔尖)的陆家嘴世茂滨江花园,登上魔都第一高住宅宝座。
据最新实探,美亚项目于2024年4月顺利完成地上主体结构,目前幕墙安装也已基本完成,相信离入市的时间已经不远了。
春宇地块于2023年9月底开工,目前施工进度已来到地面,2024年8月完成约12.9万㎡四层地下空间的结构封顶。
春宇地块由1栋330米办公及酒店塔楼、1栋200米住宅塔楼和商业裙房组成,总占地面积约为3.2万㎡,总建筑面积约35.4万㎡。
除此之外,项目还将新建运动场、共享办公、社区食堂、养育托管点、商务酒店、剧场、游泳馆、心理诊疗室等丰富配套。
住宅塔楼总高52层,1-3F是大堂及物业用房,13,26,39F是超高层避难层,27层是休闲层。
美亚地块由1栋170米的超高层办公塔楼(T1)、1栋100米销售住宅塔楼(T2)、1栋100米租赁住宅塔楼(T3)、以及3-9层的商业裙房连成一体,共约4.2万方住宅面积,312套房源。
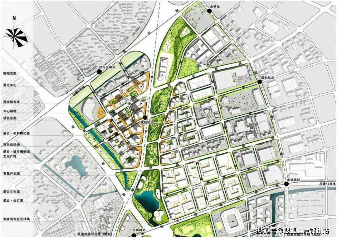
浦东“黄金发展带”主要焦“3+5”重点地区。1个中央活动区:前滩;两个副中心:张江、金桥;以及五个潜力地区。
其中,金桥城市副中心系一个区域的整体开发,核心区围绕“科技商务+双环驱动”总体布局,规划建设金桥中央公园,西半环布局科技商务功能,东半环布局科技研发功能。
“上海•金环”则是金桥城市副中心核心区,核心建筑群以330米超高层塔楼为核心地标,金桥元中心项目是“上海金环”的重要组成部分。
整体总建筑面积共计约55万㎡,是集办公、商业、酒店、租赁住宅、销售住宅于一体的超大型城市综合体。
美亚项目,包括一栋170米(T1)的花园办公楼、2栋100米的云端住宅(T2、T3)。一期占地面积2.06万㎡,总建筑面积18.57万㎡。
该地块是金桥副中心核心区首开项目之ー,将打造集研发办公、特色商业、高端住宅等功能为一体的复合型超高层综合体。
春宇项目,包含超高层塔楼、云端住宅和山谷式商业裙房,其中330米超高层塔楼将成为金桥的门户地标,总建筑面积35.69万㎡。
该地块屋顶将打造上海首个主题室外观光平台,楼内设计酒店、办公楼,还有云端住宅,将是上海最高的住宅楼。
地上空间2层和3层,将打造24小时公共开放平台,形成无障碍人行分流步行系统。
美亚、春宇地块的4层地下室整体联通,形成单层面积接近5万㎡的超大地下空间,利用城市核、下沉广场等要素的设计,引入阳光与绿意。
整个项目将实现地下空间、地上空间、空中走廊“三首层”的空间格局,打造互联互通、高度共享、高效舒适的未来之城。
办公楼、住宅、商业、文化等功能的导入,使得项目的建筑群形成了高度复合的城市综合体。
商业空间以曲线型的绿色山谷为意向,与滨河空间连成一体,绿化自河岸沿建筑层层生长,漫过裙房、170米塔楼,与中央公园遥相呼应。
车行落客集中在地下大堂,住宅车库由专用住宅坡道进入,私梯入户,与商业办公的动线分离。
金桥集团贯彻“地上一座城、地下一座城、云端一座城”的开发建设理念,形成“金”字系列产城综合体,被誉为金桥的“七朵金花”。
根据规划理念,整体方案以公园、河岸为中心,交织成大面积的绿色生态网络,成为浦东新区的一颗绿色心脏。
项目规划有金桥艺术中心、教育科研、研发文化、商业、中央公园、办公楼等用地,未来居住品质还是非常有保障的。
郑重承诺:此房源信息真实有效,开发商直属全程营销策划,中介勿扰如有问题欢迎来电咨询,来电即可享受买房优惠!
1、本资料为要约邀请,不作为要约或承诺;买卖双方的权利义务以双方签订的《商品房买卖合同》及其补充协议、附件等书面文件为准;相关宣传内容不排除因政府相关规划、规定及出卖人分期规划、未能控制等原因发生变化;出卖人将!不定期对宣传材料进行修改,敬请留意最新资料。
2、图片来源于网络,仅作为推广示意使用;如涉及版权使用,请与我司联系。返回搜狐,查看更多


